Ein um 1925 gebautes Mehrfamilienhaus in Kleinbasel, welches um zwei Stockwerke erweitert wurde, bildet den Gegenstand des Entwurfes. Der von aussen nahezu verborgene Dachausbau schafft Platz für zwei neue, spiegelsymmetrisch angelegte Maisonette-Wohnungen.
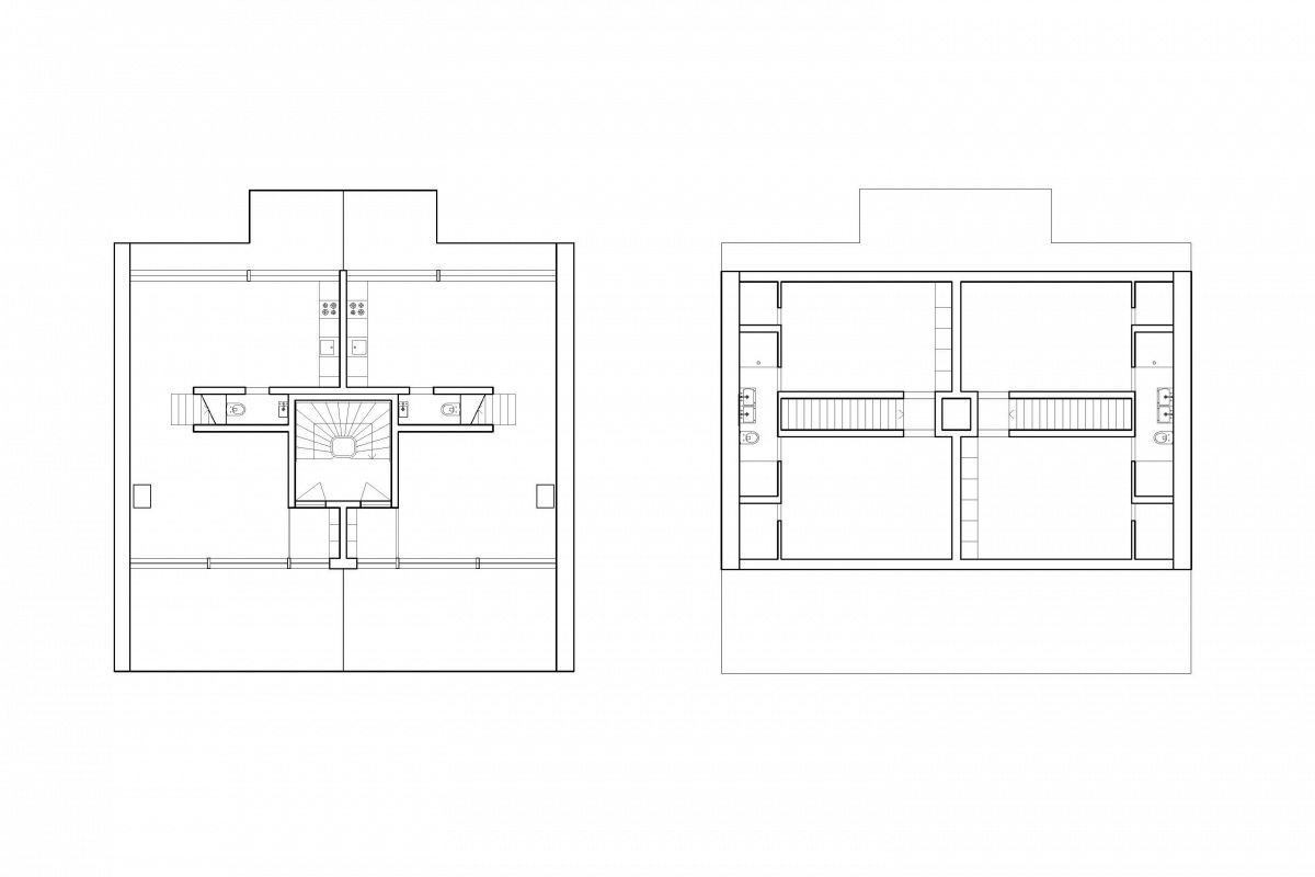
Das wesentliche konstruktive Prinzip des Dachausbaus bilden zwei Firstpfetten, die zwischen die beiden abschliessenden Brandwänden des Gebäudes gespannt sind. An diesen hängt die gesamte Dachkonstruktion – Wände und Geschossdecken miteingeschlossen – aus vorfabrizierten Holzbauelementen. Dank der frei gespannten Konstruktion entsteht im unteren Stockwerk der Maisonette-Wohnungen ein durchgehender offener Wohnraum, der zu beiden Seiten grosszügig mit Fensterfronten geöffnet ist und jeweils auf eine Terrasse führt.
Im Inneren bildet der Treppenlauf ins oberste Geschoss entlang der statischen Achse das Rückgrat der Wohnungen. Er dient als zentrales Erschliessungselement, das die offenen, extrovertierten Räume im unteren Geschoss mit den introvertierten Räumen des oberen Geschosses verbindet. Die Konstruktion stützt und bestimmt somit die Funktion der Räume und deren Qualitäten. Eher introvertiert sind die beiden oberen Schlafräume, gegen Himmel orientieren sie sich mit grossen Dachflächenfenstern. Die unteren Wohnräume hingegen öffnen sich mit grosszügigen Fensterfronten und Terrassen zur Hof- und Strassenseite. Die Oberlichter über der Treppe, eingefügt zwischen den beiden Firstpfetten, fangen das Himmelslicht auf und lassen es durch den zweigeschossigen Treppenschacht in das Zentrum des Wohnraumes fallen.
Dem Grundsatz, dass die Form der Funktion folgt wird in diesem Projekt besonders Folge getragen. So ist die abgestufte Wand der Treppenbrüstung eine Ableitung der Treppengeometrie und zudem im Achsabstand der Holzbalkendecke. Das innere Treppengeländer aus industriellem Bodengitter findet sich auf den Terrassen in rohem Zustand wieder und dient als Absturzsicherung. Die verzinkten Verbindungselemente der Holzbalken beim Oblicht sind sichtbar belassen. Folgerichtig ist die Form der Feuerstelle der reinen Funktion abgeleitet. Der hintere Teil der Feuerstelle, welcher sich von Boden bis Decke erstreckt, beinhaltet sämtliche Abluftrohre und Installationsstränge der darunterliegenden Wohnungen. Der vordere Teil umhüllt den Feuerraum. Gemeinsam sind die Elemente in rohem Stahl zusammengefasst und bilden das zentrale Element des Wohnraumes. Das verwendete Fichtenholz, welches zur Konstruktion in Elementbauweise verwendet wurde, wird im Endzustand sichtbar belassen. So bleibt das Gleichgewichts- und statische Prinzip der hängenden Dachkonstruktion für die Bewohner sichtbar und trägt zur räumlichen Atmosphäre bei.
Fotografie & Film
- Weisswert, Basel
Wandbild
- Jan Paul Evers, Abstrakt getarnte Bürgerlichkeit, 2018
- Schweizer Baudokumentation - das Magazin: Ausgabe 01/2019
- Architekturdialoge Basel: Hier und Jetzt 01/2018
- Architektur Basel: "Aufstockung Drahtzugstrasse: Wenn das Wohnglück an zwei Pfetten hängt"
- Umbau und Renovieren: Ausgabe 05/2018








